LVM Kinnisvara: alustasime kinnisvaraeksperimendiga

Ingmar Saksing 22. apr. 2014

Meile meeldivad kinnisvaraeksperimedid! Startisime eelmisel nädalal ja ehitame kahe nädalaga Eesti Näituste messikeskusesse uue Sakala 7 korterelamu näidiskorteri.

Miks me seda teeme?

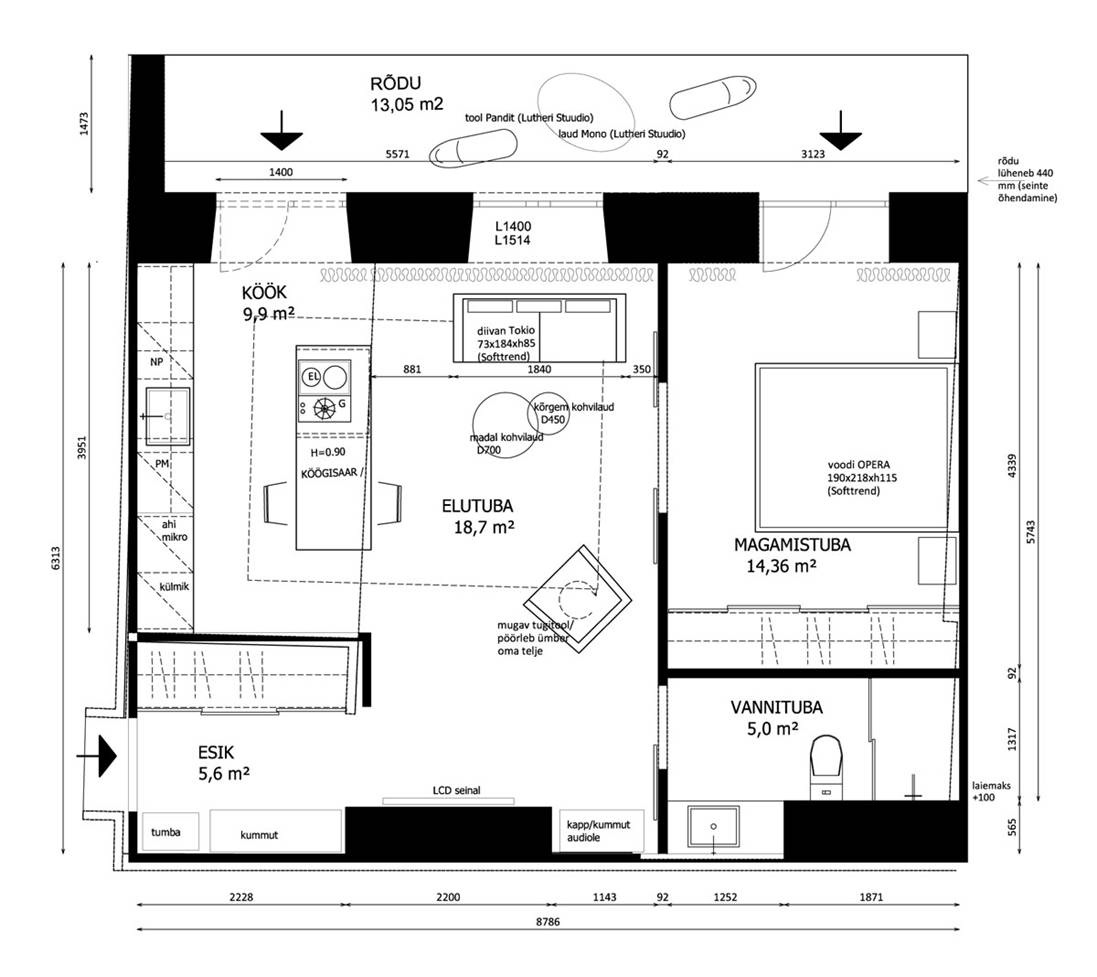
Spetsiaalselt messi tarbeks 1:1 mõõdus valmisehitatud ja täielikult sisustatud korter annab parima ettekujutuse Sakala 7 ajaloolise elamu klassikalisest stiilist, mis on taasloodud kõige moodsamate vahenditega!

Kuidas messile pääseda?

Kui annad teada, millist nime see tänavaosa 1935. aastani kandis, kus Sakala 7 täna asub, oledki õnnelik pääsmete omanik!

image

Sakala 7 näidiskorteri sisekujunduse autoriteks on Anne Saarniit ja Ülle Maiste.

Rubriigid

Arhiiv

Teie kiri on saadetud

×
×